







Apartamentul de 3 camere, este amplasat intr-un imobil nou, tip boutique, din zona Bld. Ferdinand.
Numarul redus de unitati, accentul pe intimitate si exclusivitate, designul modern si functional, asigura o experienta rezidentiala deosebita intr-o zona cu traditie a capitalei (Obor-Iancului).
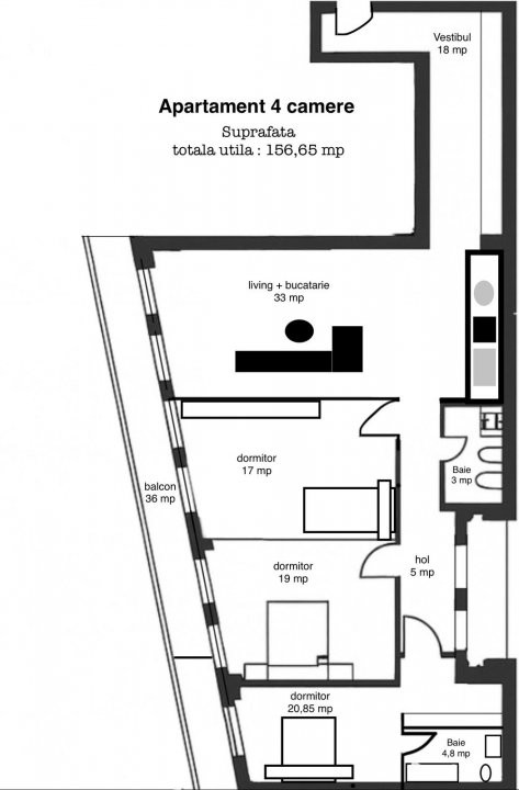
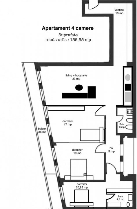
Ansamblul se remarca prin poziționarea excelenta (acces rapid catre centru, dar si la 10-15 min de A1 si A2), finisaje premium, regim redus de inaltime (P+4), apartamente spatioase (peste 90 mp utili , 3.10 m inaltime), si terase generoase.